1 Bedroom
1 Bathroom
936 sqft
Air Conditioned
Forced Air
$230,000Maintenance,
$583 Monthly
Affordable retirement living in a prime location! This nicely renovated home features an updated kitchen with fresh paint and new butcher block countertops, brand new hot water tank, and updated bathroom vanity. Electric furnace (heat pump ready). Enjoy a fully fenced yard with planter boxes ready for the planting season, a covered porch, and a private deck. Additional features include a single carport, workshop, and storage shed. The bright den offers flexible use as a family room or second bedroom, and the south-facing kitchen and dining area provide great natural light. Located in a well-maintained 55+ park, close to shopping, golf course, marina and the beautiful sandy saratoga beach. Pets allowed with approval. (id:37104)
Property Details
|
MLS® Number
|
1030455 |
|
Property Type
|
Single Family |
|
Neigbourhood
|
Merville Black Creek |
|
Community Features
|
Pets Allowed, Age Restrictions |
|
Features
|
Level Lot, Park Setting, Private Setting, Other, Marine Oriented |
|
Parking Space Total
|
2 |
|
Structure
|
Shed |
Building
|
Bathroom Total
|
1 |
|
Bedrooms Total
|
1 |
|
Appliances
|
Microwave, Refrigerator, Stove, Washer, Dryer |
|
Constructed Date
|
1974 |
|
Cooling Type
|
Air Conditioned |
|
Fireplace Present
|
No |
|
Heating Fuel
|
Electric |
|
Heating Type
|
Forced Air |
|
Size Interior
|
936 Sqft |
|
Type
|
Manufactured Home |
Parking
Land
|
Acreage
|
No |
|
Zoning Description
|
Mhp |
|
Zoning Type
|
Multi-family |
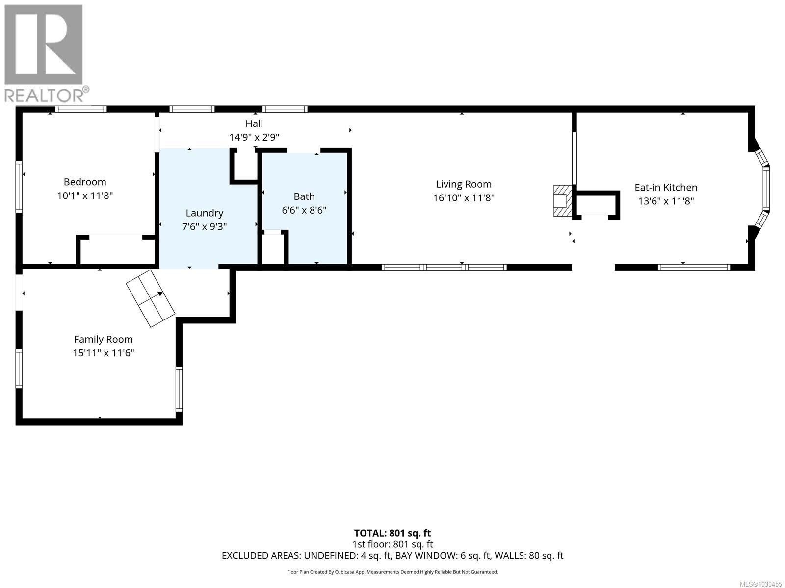
Rooms
| Level |
Type |
Length |
Width |
Dimensions |
|
Main Level |
Laundry Room |
|
|
7'6 x 9'3 |
|
Main Level |
Primary Bedroom |
|
|
10'1 x 11'8 |
|
Main Level |
Living Room |
|
|
16'10 x 11'8 |
|
Main Level |
Kitchen |
|
|
13'6 x 11'8 |
|
Main Level |
Den |
|
|
15'11 x 11'6 |
|
Main Level |
Bathroom |
|
|
4-Piece |
https://www.realtor.ca/real-estate/29551541/c3-2157-regent-rd-black-creek-merville-black-creek