LOADING

11 1630 Croation Rd Campbell River, British Columbia V9W 3T5

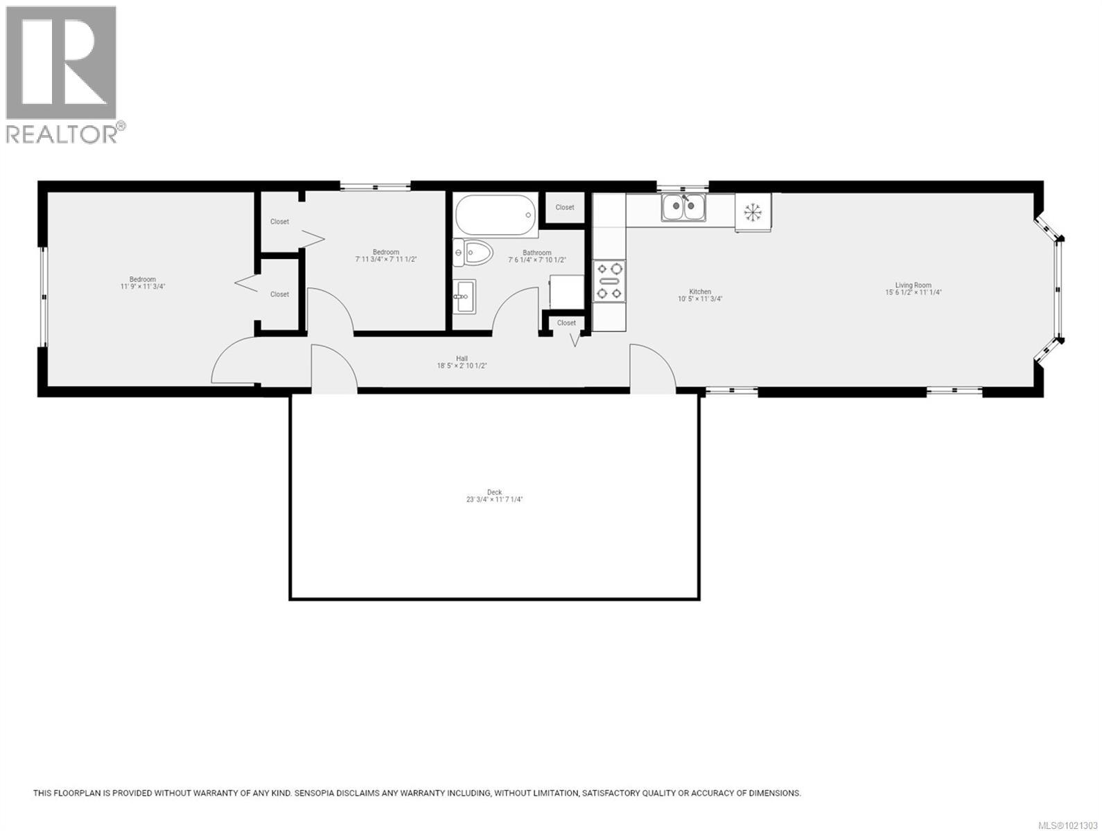
2 Bedroom 1 Bathroom 709 sqft
None Baseboard Heaters, Other

$169,900

Maintenance,

$879 Monthly

Renovated mobile home in a 55+ community, featuring extensive updates throughout. Incredible double lot with fully fenced garden area and greenhouse. The kitchen boasts new cabinets. Bathroom has a soaker tub, newer laminate flooring, new interior doors, and the electrical have all been upgraded. Two convection wall heaters, vinyl windows and drywalled throughout add comfort and style. Outside, enjoy new siding, 2 storage sheds, reinforced covered deck, exterior doors, roof, and skirting with double-door access, gutters and downspouts have all been upgraded. The home is anchored (insurance necessity) and the hot water tank is new. Relax on the 12'x24' deck overlooking a spacious double lot with fenced garden at the end of a no thru road. A perfect place to call home, with small pets welcome. Quick possession is possible. (id:37104)

Open House

This property has open houses!

April
11
Saturday
Starts at:

10:00 am

Ends at:

11:00 am

Property Details

MLS® Number 1021303
Property Type Single Family
Neigbourhood Campbell River West
Community Features Pets Allowed With Restrictions, Age Restrictions
Features Central Location, Private Setting
Parking Space Total 2
Structure Shed

Building

Bathroom Total 1
Bedrooms Total 2
Appliances Refrigerator, Stove, Washer, Dryer
Constructed Date 1974
Cooling Type None
Fireplace Present No
Heating Fuel Electric
Heating Type Baseboard Heaters, Other
Size Interior 709 Sqft
Type Manufactured Home

Land

Access Type Road Access
Acreage No
Zoning Description Mhp
Zoning Type Residential

Rooms

Level Type Dimensions
Main Level Bathroom 4-Piece
Main Level Primary Bedroom Measurements not available x 11 ft
Main Level Bedroom 7'11 x 7'11
Main Level Living Room 15'6 x 11'4
Main Level Kitchen 11 ft x Measurements not available

https://www.realtor.ca/real-estate/29144839/11-1630-croation-rd-campbell-river-campbell-river-west

Interested?

Contact us for more information


Generating Captcha

Your Favourites

 

No Favourites Found