LOADING

4324 Macaulay Rd Black Creek, British Columbia V9J 1E2

2 Bedroom 1 Bathroom 972 sqft
Fireplace None Other Acreage

$727,000

Welcome to your own peaceful sanctuary. This charming A-frame home is perfectly positioned to capture breathtaking views through expansive double-pane, forward-facing windows that flood the space with natural light. A sliding glass door opens onto a spacious deck, the ideal place to sip your morning coffee while overlooking the stunning 274-ft pond and surrounding natural beauty. The pond serves as a thriving bird sanctuary, home to sandhill cranes, swans, kingfishers, herons, and an abundance of other wildlife. Every season brings a new view and a new soundtrack of nature. Set on a private 1-acre property, this cozy home features 2 bedrooms and 1 bathroom, with a warm pellet stove that creates the perfect atmosphere for those cozy evenings at home. The unfinished basement offers incredible potential. Partial walls are framed, plumbing hookups are in place for a future bathroom, and the space is well insulated. Whether you envision additional living space, a guest suite, studio, or workshop, the groundwork has already been started. If you’ve been dreaming of peaceful country living with room to grow, this property is ready for your vision. (id:37104)

Open House

This property has open houses!

April
11
Saturday
Starts at:

12:00 pm

Ends at:

2:00 pm

Property Details

MLS® Number 1027499
Property Type Single Family
Neigbourhood Merville Black Creek
Features Acreage, Park Setting, Sloping, Other
Parking Space Total 5
Plan Vip23282
Structure Shed

Building

Bathroom Total 1
Bedrooms Total 2
Constructed Date 1989
Cooling Type None
Fireplace Present Yes
Fireplace Total 1
Heating Type Other
Size Interior 972 Sqft
Type House

Parking

Stall

Land

Access Type Road Access
Acreage Yes
Size Irregular 1.01
Size Total 1.01 Ac
Size Total Text 1.01 Ac
Zoning Description Ru-8
Zoning Type Rural Residential

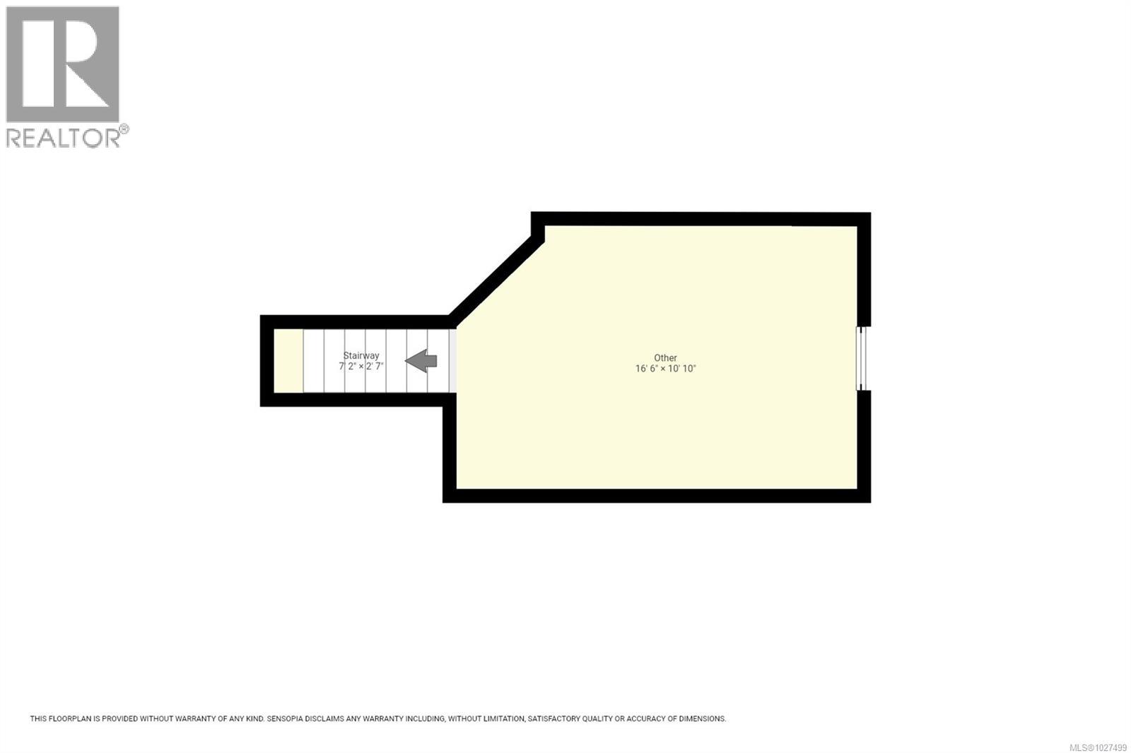
Rooms

Level Type Dimensions
Main Level Bathroom 4'11 x 9'5
Main Level Bedroom 11'0 x 14'7
Main Level Laundry Room 8'0 x 5'4
Main Level Kitchen 8'0 x 7'2
Main Level Dining Room 8'0 x 9'6
Main Level Living Room 19'3 x 11'10
Other Bedroom 10'10 x 16'6

https://www.realtor.ca/real-estate/29418446/4324-macaulay-rd-black-creek-merville-black-creek

Interested?

Contact us for more information


Generating Captcha

Your Favourites

 

No Favourites Found