LOADING

A 500 Industrial Park Pl Gold River, British Columbia V0P 1G0

$1,075 Monthly

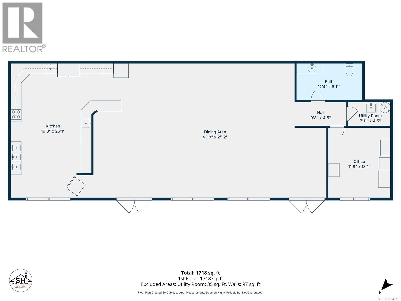
Business opportunity in Gold River. 1850 sq ft of ready-to-go lease space for a restaurant with the equipment included. This unique space next to the river is available today. $1250 per month from April until October and $900 per month from November to March. Restaurant electricity is not included. The tenant will reimburse the landlord for 80% of garbage, sewer, and water (GSW) costs, as well as snow removal. The tenant is responsible for 95% of the house’s electrical costs, attributable to exterior lighting and the heat pump (Unit B does not use the heat pump), plus a proportionate share of property taxes based on area. These additional charges total $725 per month, plus GST, and are subject to annual adjustment. (id:37104)

Property Details

MLS® Number 1024758
Property Type Other
Neigbourhood Gold River

Building

Fireplace Present No
Size Exterior 1850 Sqft
Type Other

Land

Acreage No
Zoning Description C-2
Zoning Type Unknown

https://www.realtor.ca/real-estate/29328093/a-500-industrial-park-pl-gold-river-gold-river

Interested?

Contact us for more information


Generating Captcha

Your Favourites

 

No Favourites Found